Mapa
Oblíbené
0
Stádlec
Komentáře
Ubytování
Galerie obrázků
Zámek na obr. I.A.Venuta z r. 1824
© Ing. Karel Kubín, 09/2017
zámek Stádlec
© Vlastislav Mareček, 07/2016
zámek Stádlec
© Vlastislav Mareček, 07/2016
zámek Stádlec
© Vlastislav Mareček, 07/2016
zámek Stádlec
© Vlastislav Mareček, 03/2012
zámek Stádlec
© Vlastislav Mareček, 03/2012
zámek Stádlec
© Vlastislav Mareček, 07/2016
Stádlec
Stádlecký zámek. Dnes je v něm obecní úřad.
© Jaroslav Šefčík, 08/2009
Stádlec
© Jaroslav Šefčík, 08/2009
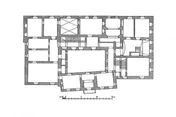
Půdorys
Vlček P, Ilustrovaná encyklopedie Českých zámků, Libri 2001, str. 453
Zámek s bočním křídlem
© Pavel Vítek 08/2005
Zámek z parku
© Pavel Vítek 08/2005
Hlavní portál zámku
© Pavel Vítek 08/2005
Přihlášení
Email
Password
Přihlásit
×
Tento web používá cookies pro správnou funkci, analytiku a marketing.
Více informací
Přijmout vše
Odmítnout
Nastavení
Nastavení cookies
Nutné cookies
Analytické cookies
Marketingové cookies
Uložit
Nastavení cookies
×
Nutné cookies
Analytické cookies
Marketingové cookies