Mapa
Oblíbené
0
Horní Dunajovice
Komentáře
Ubytování
Galerie obrázků
Západní křídlo od západu
© Dušan Dohňanský 10/2020
Sev.Křídlo od severu
© Dušan Dohňanský 10/2020
Vých. strana severního křídla
© Dušan Dohňanský 10/2020
Ohradní zeď
© Dušan Dohňanský 10/2020
Vnitřní nádvoří od východu
© Dušan Dohňanský 10/2020
detail sklepních vstupů
© D Dohňanský, 07/2014
nádvorní strana od jv.
© D Dohňanský, 07/2014
arkýř
© D Dohňanský, 07/2014
vstupní portál
© D Dohňanský, 07/2014
pohled na nádvorní stranu od jihu
© D Dohňanský, 07/2014
sev.křídlo zámku
© D Dohňanský, 07/2014
na nádvoří se pasou tyto kamerunské kozy
© D Dohňanský, 07/2014
iluzivní dekor na nádvorní fasádě západního křídla
© Pavel Zany Komárek 22/9/2002
portál vstupní brány
© Pavel Zany Komárek 22/9/2002
goticko-renesanční arkýř západního křídla
© Pavel Zany Komárek 22/9/2002
celkový pohled z nádvoří
© Pavel Zany Komárek 22/9/2002
západní průčelí tvrze a vstupní brány
© Pavel Zany Komárek 22/9/2002
pozdně renesanční portál na nádvorní pavlač
© Pavel Zany Komárek 22/9/2002
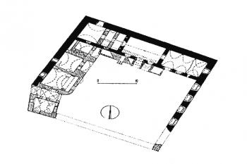
půdorys 1. patra
© Ilustrovaná encyklopedie moravských hradů, hrádků a tvrzí
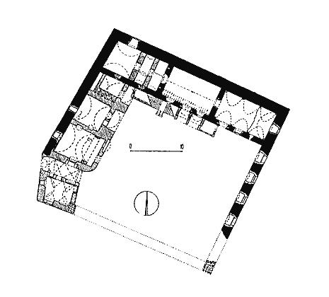
půdorys přízemí
© Ilustrovaná encyklopedie moravských hradů, hrádků a tvrzí
Přihlášení
Email
Password
Přihlásit
×