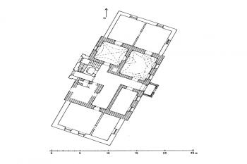
Plán přízemí
Hořákov, plán přízemí zámku. Dvojité šrafy označují zdivo vzniklé před rokem 1880, mladší konstrukce neznačeny. Místnost při západním nároží nebyla za návštěvy bohužel přístupná. Zaměření Jiřího Úlovce z července 1989
Úlovec Jiří, Hrady, zámky a tvrze Klatovska, Libri, 2004