Mapa
Oblíbené
0
Bačkov
Komentáře
Ubytování
Galerie obrázků
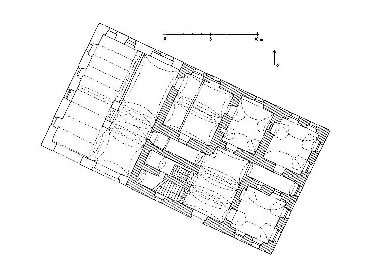
Plán přízemí
Plán přízemí zámku podle Ladislava Svobody. Šikmo šrafováné zdivo pochází z doby kolem roku 1786, neznačené zdivo je mladší. Kresba J. Úlovec.
Úlovec Jiří, Ohrožené hrady, zámky a tvrze Čech, Libri, 2003, 1. díl, A - M, str. 28
Pohled od jihu
© Luděk Pitter 03/2005
Od jihozápadu
© Luděk Pitter 03/2005
Přihlášení
Email
Password
Přihlásit
Moje oblíbená místa
×
×
Tento web používá cookies pro správnou funkci, analytiku a marketing.
Více informací
Přijmout vše
Odmítnout
Nastavení
Nastavení cookies
Nutné cookies
Analytické cookies
Marketingové cookies
Uložit
Nastavení cookies
×
Nutné cookies
Analytické cookies
Marketingové cookies