Mapa
Oblíbené
0
Ahníkov
Komentáře
Ubytování
Galerie obrázků
Nádvorní průčelí zámku
(in E. Poche: Umělecké památky Čech 1, Praha 1977)
© Iva Kučerová 09/2020
Hlavní průčelí mladší tvrze, v pozadí štít starší tvrze, na fotografii F. Vejrycha
(in F. Musil, M. Plaček, J. Úlovec: Zaniklé hrady, zámky a trvze Čech, Moravy a Slezska po roce 1945) Originál fotografie je uložen v Archivu NMT v Praze
09/2020
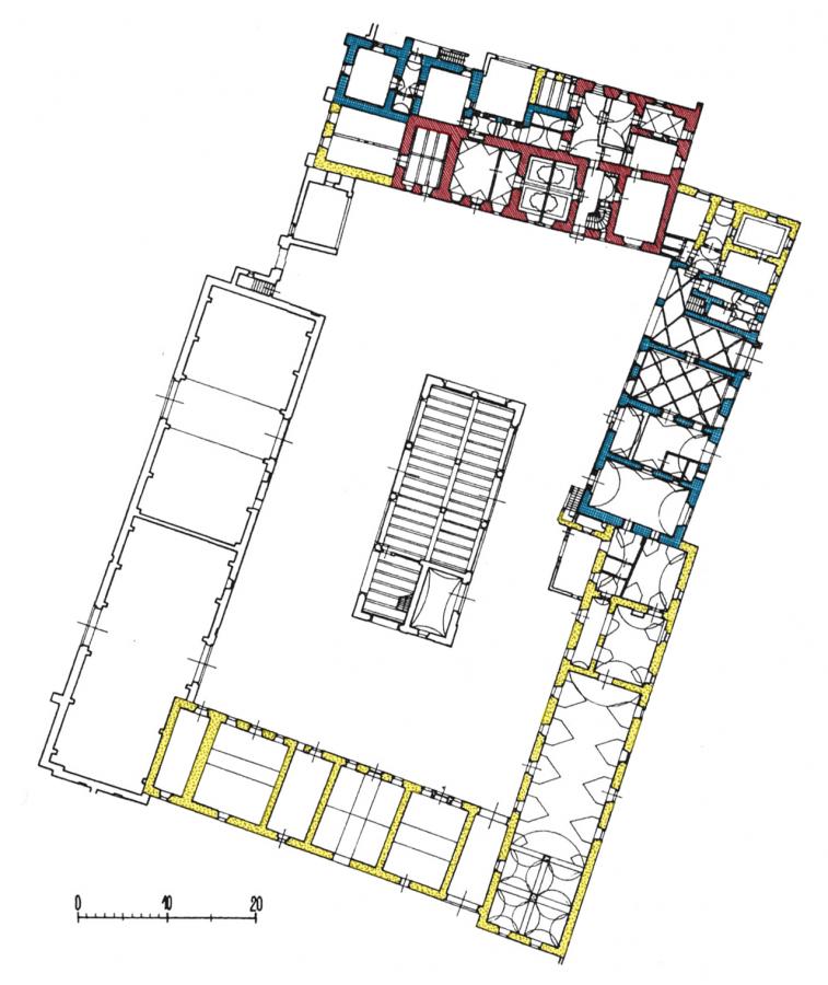
Plán poplužního dvora a panských sídel v Ahníkově před demolicí po roce 1985
(in F. Musil, M. Plaček, J. Úlovec: Zaniklé hrady, zámky a trvze Čech, Moravy a Slezska po roce 1945) Červeně označené je zdivo z počátku 16. století; modře zdivo ze závěru 16. století; žlutě zdivo z 18. století, zbytek je z mladších období
09/2020
Výřez z katastrální mapy vsi z roku 1842
(in F. Musil, M. Plaček, J. Úlovec: Zaniklé hrady, zámky a trvze Čech, Moravy a Slezska po roce 1945) Objekty dvora s tvrzí zvýrazněny červeně
09/2020
vstupní průčelí na historické pohlednici
© anon.
Zámek Ahníkov před demolicí
© anon., před r. 1985
Přihlášení
Email
Password
Přihlásit
Moje oblíbená místa
×
×
Tento web používá cookies pro správnou funkci, analytiku a marketing.
Více informací
Přijmout vše
Odmítnout
Nastavení
Nastavení cookies
Nutné cookies
Analytické cookies
Marketingové cookies
Uložit
Nastavení cookies
×
Nutné cookies
Analytické cookies
Marketingové cookies