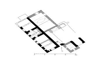
půdorys tvrze
černě zdivo 14. století, křížkovaně pozdně gotické kolem r. 1500, šrafovaně renesanční z přelomu 16. a 17. století, mladší neznačeno
© Jiří Úlovec: O tvrzi a zámku v Obděnicích u Vysokého Chlumce, Podbrdsko XVI/2009, Státní okresní archiv Příbram a Hornické muzeum Příbram, Příbram 2009