Mapa
Oblíbené
0
rychta se žudrem
Komentáře
Ubytování
Galerie obrázků
rychta od jihu na snímu před rokem 1904
© fotoarchiv Muzea Boskovicka (fotorepro V. Kolařík, D. Merta, J. Pokorný: Bývalá rychta v Sebranicích čp. 36, Dějiny staveb 2014, Klub Augusta Sedláčka a Sdružení pro SHP, Plzeň 2014)
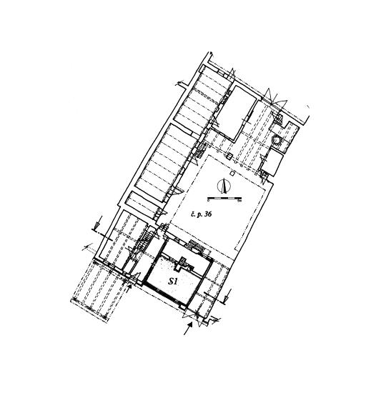
půdorys rychty
© V. Kolařík, D. Merta, J. Pokorný: Bývalá rychta v Sebranicích čp. 36, Dějiny staveb 2014, Klub Augusta Sedláčka a Sdružení pro SHP, Plzeň 2014
© Luděk Vláčil 08/2019
© Luděk Vláčil 08/2019
© Luděk Vláčil 08/2019
Přihlášení
Email
Password
Přihlásit
×