Mapa
Oblíbené
0
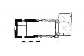
kostel Všech svatých
Komentáře
Ubytování
Galerie obrázků
půdorys kostela
© Pavel Šafránek, Přemysl Reibl: Sakrální stavby okresu Blansko, Muzeum Boskovicka, Adamov 1998
© Luděk Vláčil 10/2019
© Luděk Vláčil 10/2019
© Luděk Vláčil 10/2019
© Luděk Vláčil 10/2019
Přihlášení
Email
Password
Přihlásit
×