Mapa
Oblíbené
0
kostel sv. apoštolů Petra a Pavla
Staré Prachatice
Komentáře
Ubytování
Galerie obrázků
© Milan Caha 08/2021
© Karel Husák, 09/2014
© Karel Husák, 09/2014
© Karel Husák, 09/2014
© Karel Husák, 09/2014
© Karel Husák, 09/2014
© Karel Husák, 09/2014
© Karel Husák, 09/2014
© Karel Husák, 09/2014
© Karel Husák, 09/2014
© Karel Husák, 09/2014
© Karel Husák, 09/2014
© Karel Husák, 09/2014
© Karel Husák, 09/2014
© Karel Husák, 09/2014
© Karel Husák, 09/2014
© Karel Husák, 09/2014
© Karel Husák, 09/2014
© Karel Husák, 01/2006
© Karel Husák, 01/2006
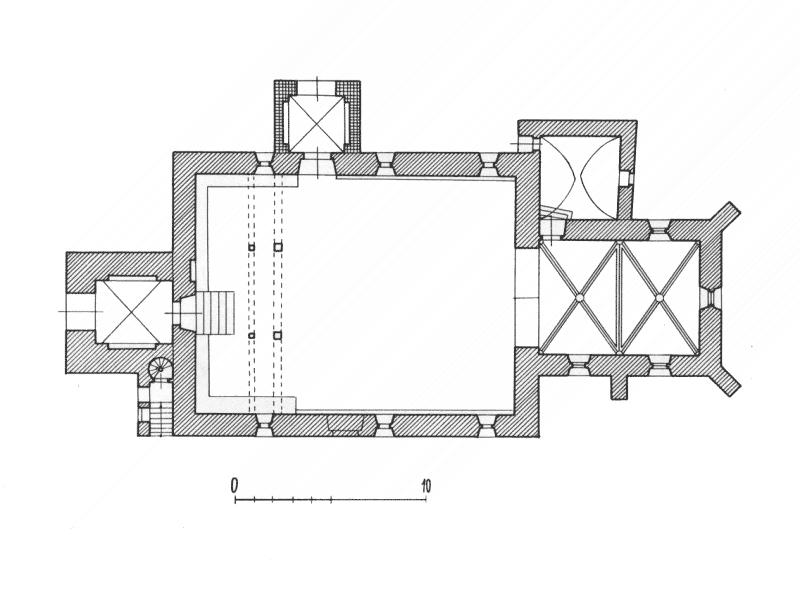
Staré Prachatice, kostel sv. Petra a Pavla
© Umělecké památky Čech. III. P–Š, Praha 1980. Emanuel Poche (ed.)
Panoramatický pohled od jihu
© Filip Matoušek 9/2010
Kostel od jihu
© Filip Matoušek 9/2010
Zvonová věž, přistavěná k západnímu průčelí kostela
© Filip Matoušek 9/2010
Místnost pod zvonovou věží s nápisy provedenými červenou hlinkou ze 16. a 17. století
© Filip Matoušek 9/2010
Presbytář se dvěma poli křížové klenby a nástěnnými malbami
© Filip Matoušek 9/2010
Nástěnná malba s motivem Posledního soudu z 1. poloviny 16. století (severní stěna presbytáře)
© Filip Matoušek 9/2010
Románské zdivo původního kostelíka ze 12. století, odhalené výzkumem v roce 1971
© Filip Matoušek 9/2010
Historicky cenné zvony v kostelní věži z let 1496 (vlevo) a 1665
© Filip Matoušek 9/2010
Náhrobníky ze 16. století
© Filip Matoušek 9/2010
Interiér lodi a presbytář
© Filip Matoušek 9/2010
Detail křížové klenby a výzdoby presbytáře
© Filip Matoušek 9/2010
Průhled interiérem lodi k západu (vpravo výzkumem odhalené pozůstatky románského zdiva)
© Filip Matoušek 9/2010
Přihlášení
Email
Password
Přihlásit
Moje oblíbená místa
×
×
Tento web používá cookies pro správnou funkci, analytiku a marketing.
Více informací
Přijmout vše
Odmítnout
Nastavení
Nastavení cookies
Nutné cookies
Analytické cookies
Marketingové cookies
Uložit
Nastavení cookies
×
Nutné cookies
Analytické cookies
Marketingové cookies