Mapa
Oblíbené
0
kostel Narození sv. Jana Křtitele
Komentáře
Ubytování
Galerie obrázků
náhrobní kámen Václava Hodického z Hodic z roku 1599
© Zdeňka Míchalová, 01/2011
náhrobek Jana Hodějovského z Hodějova z roku 1582
© Zdeňka Míchalová, 01/2011
pohled z presbytáře do dvoulodí
© Zdeňka Míchalová, 01/2011
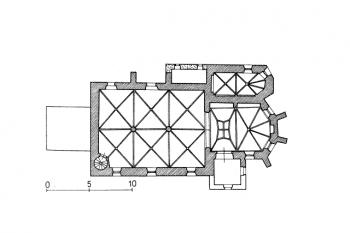
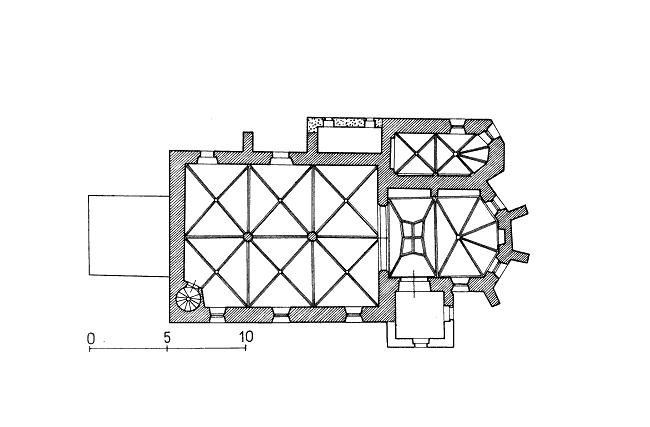
půdorys kostela
není zakreslena předsíň před jižním vstupem
© kol.: Umělecké památky Čech, část 1. [A/J], Academia, Praha 1977
Kostel od severu
© Ivan Grisa 12/2009
Presbytář od jihu
© Ivan Grisa 12/2009
Bývalá fara
© Ivan Grisa 12/2009
Kostel od jihozápadu
© Ivan Grisa 12/2009
Přihlášení
Email
Password
Přihlásit
Moje oblíbená místa
×
×
Tento web používá cookies pro správnou funkci, analytiku a marketing.
Více informací
Přijmout vše
Odmítnout
Nastavení
Nastavení cookies
Nutné cookies
Analytické cookies
Marketingové cookies
Uložit
Nastavení cookies
×
Nutné cookies
Analytické cookies
Marketingové cookies