Půdorys
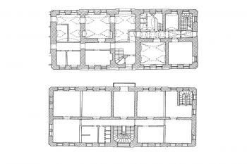
Nahoře: Plán přízemí starého zámku. Dole: Plán patra starého zámku. - Plány přízemí i patra pořízeny doplněním evakuačního plánu objektu. Šrafovaně značeno barokní zdivo, zbylé konstrukce mladší. Sever nahoře. Stav před úpravami z roku 1996, kresba autor.
Úlovec Jiří, Hrady, zámky a tvrze na Ústecku, Ústecká vlastivěda sv III, Město Ústí nad Labem, 2002, str. 212