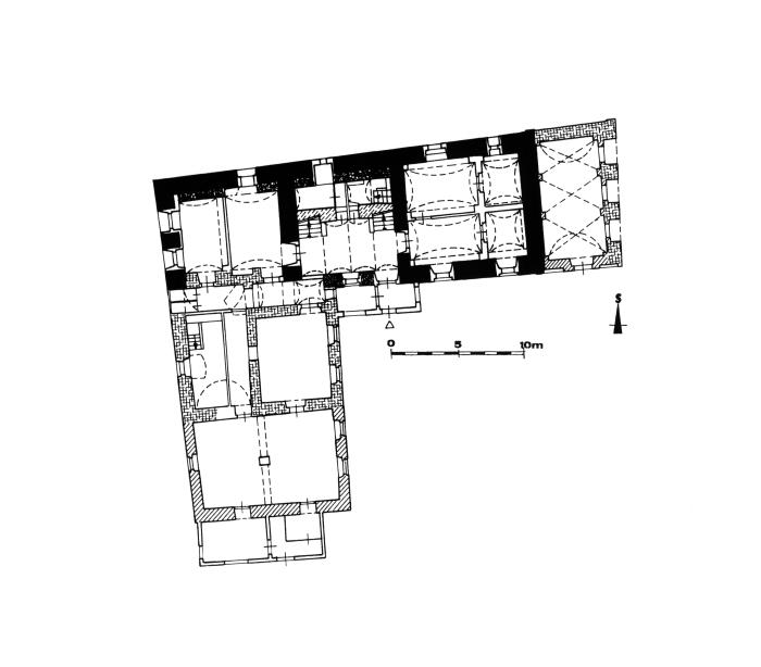
půdorys tvrze/zámku
černě předpokládané zdivo gotické tvrze, mřížkovaně renesanční, šrafovaně barokní, neznačené mladší
© Kašička, František a Nechvátal, Bořivoj: Hrady, hrádky a tvrze na Strakonicku, Blatensku a Vodňansku. Muzeum středního Pootaví, Strakonice 2014