Mapa
Oblíbené
0
Debrník
Komentáře
Ubytování
Galerie obrázků
© Pavel P. 11/2025
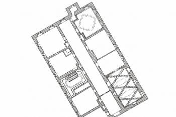
půdorys přízemí zámku
© zaměření SBD Praha z roku 1989 (in: F. Musil, M. Plaček, J. Úlovec: Zaniklé hrady, zámky a tvrze Čech, Moravy a Slezska po roce 1945, Libri, Praha 2005)
Debrník-zaniklý zámek
© Jaroslav Svoboda 01/2022
Debrník-zaniklý zámek
© Jaroslav Svoboda 01/2022
Debrník-zámecká kašna
© Miloslav Beneš 03/2025
Přihlášení
Email
Password
Přihlásit
Moje oblíbená místa
×
×
Tento web používá cookies pro správnou funkci, analytiku a marketing.
Více informací
Přijmout vše
Odmítnout
Nastavení
Nastavení cookies
Nutné cookies
Analytické cookies
Marketingové cookies
Uložit
Nastavení cookies
×
Nutné cookies
Analytické cookies
Marketingové cookies