Mapa
Oblíbené
0
kostel sv. Jiljí
Komentáře
Ubytování
Galerie obrázků
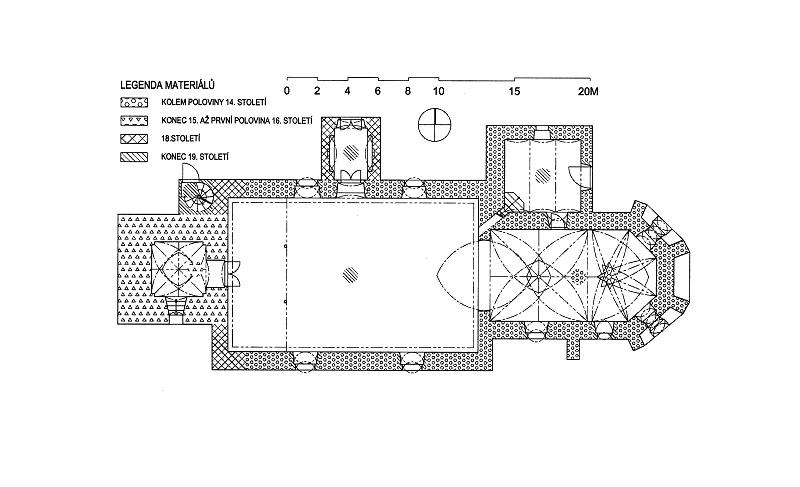
© P. Dohnalová, D. Humpola: Kostel sv Jiljí v Našiměřicích - nové poznatky ke stavebnímu vývoji, Dějiny staveb, Klub Augusta Sedláčka, Plzeň 2013
Našiměřice
© Ji 13 Va 03/2018
Našiměřice
© Vojtěch Janský 06/2025
Přihlášení
Email
Password
Přihlásit
Moje oblíbená místa
×
×
Tento web používá cookies pro správnou funkci, analytiku a marketing.
Více informací
Přijmout vše
Odmítnout
Nastavení
Nastavení cookies
Nutné cookies
Analytické cookies
Marketingové cookies
Uložit
Nastavení cookies
×
Nutné cookies
Analytické cookies
Marketingové cookies