Mapa
Oblíbené
0
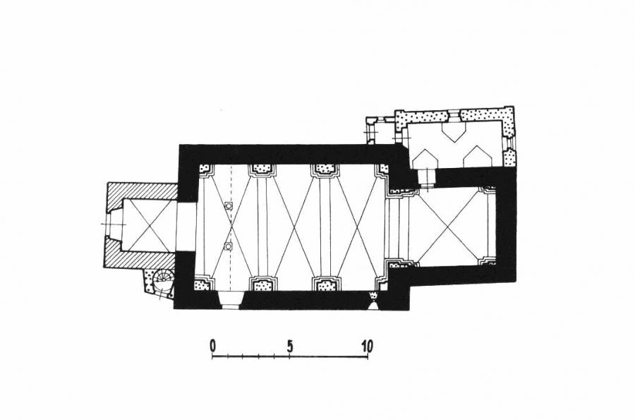
kostel sv. Jana Křtitele
Komentáře
Ubytování
Galerie obrázků
půdorys kostela
© B. Samek: Umělecké památky Moravy a Slezska, část 1. [A/I], Academia, Praha 1994
Boleradice-kostel
© Marina Hrozinová 03/2024
Boleradice-kostel
© Martin Michalský 02/2023
Přihlášení
Email
Password
Přihlásit
Moje oblíbená místa
×
×
Tento web používá cookies pro správnou funkci, analytiku a marketing.
Více informací
Přijmout vše
Odmítnout
Nastavení
Nastavení cookies
Nutné cookies
Analytické cookies
Marketingové cookies
Uložit
Nastavení cookies
×
Nutné cookies
Analytické cookies
Marketingové cookies